Undergraduate 3th Grade Design – Fall, 2023
Site: Xian, China
Individual Work
Instructor: Nan Zhang
An Insight into Ten Views of River Wang
Among the Ming Dynasty’s illustrious painters, Qiu Ying stands out with his Ten Views of River Wang. This iconic series captures the varied and rich tapestry of Wuchuan’s landscapes. Each scene, from the tranquility of its lakes to the grandeur of its mountains, serves as a window into the natural beauty and cultural essence of the region.
Beyond mere visual representation, Qiu Ying’s artwork dives deep into the harmonious interplay between humans and nature. The series not only reflects a bygone era’s reverence for the environment but also accentuates the symbiotic relationship between civilization and the natural world. As an embodiment of classical Chinese landscape painting, the Ten Views of River Wang provides a profound foundation for architectural transliteration, making it a treasure trove of inspiration for merging art with spatial design.

An Insight into Ten Views of River Wang
“Layering” or “Deep Space” (重屏) is a critical concept in traditional Chinese painting, especially in landscapes. It refers to the presentation of depth and space on a flat surface by overlaying multiple scenic elements, such as mountains, trees, and architecture.
1. Foreground-Background Relationships

2. Abstracting the Elements

3. Spatial Interpretation


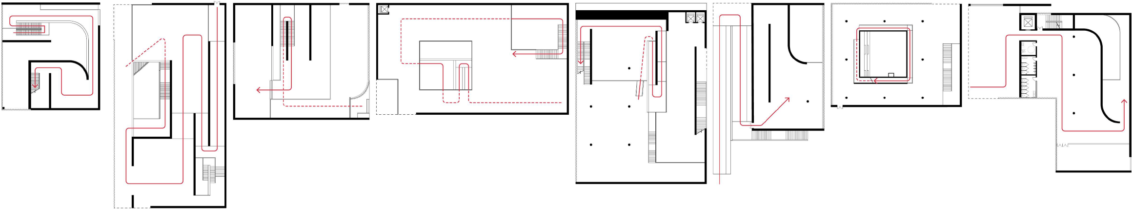
Linking Viewing with Exploration



Ground Floor Plan



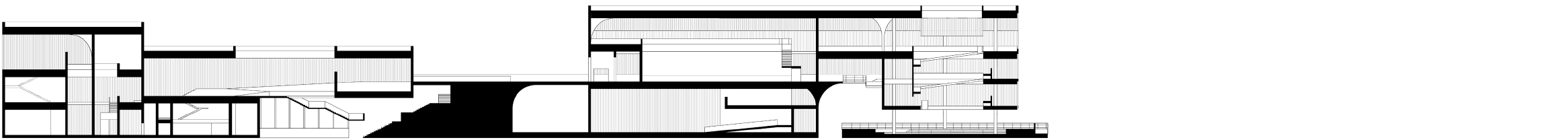
West-East Sectional Sequence

North-South Sectional Sequence








© 2019–2025 Mi Zhou. Images, drawings, and text by Mi Zhou unless credited.