Undergraduate 3rd Grade Design – Spring, 2023
Site: Nantong, China
Individual Work
Instructor: Yun Zhang

Farewell, my dear friends
We all have a bright future

3 Keywords: Idealism’s Disillusionment Since the 1980s
1 小镇做题家 “Small-Town Swot”


A self-deprecating term used by ambitious youths from small towns, referring to those born and raised outside major cities who achieve academic success through hard work and get into universities. However, upon moving to large cities for work, many find their social position is different from urban natives. Jobs are fewer, while more and more graduates compete. Seen as the backbone of social progress, they now face increasing life pressures and challenges due to a changing employment landscape.
2 孔乙己的长衫 “The Long Robe Of Kong Yiji”


Kong Yiji, a character from Lu Xun’s writings, symbolized as an impoverished scholar clinging to the outdated long robe that linked him to a society where degrees are no longer of practical value. Students often feel trapped in academic traditions, struggling with diminished social status, obsolete expectations, and many graduates’ failure to fulfill the promise of education as a secure path to job market. They now face fierce competition, like covering a narrow bridge.
3 白纸 “The White Paper”


On November 26, 2022, students from the Nanjing School of Communication undertook the “White Paper Movement” to mourn the victims of the Urumqi fire and protest against COVID-19 restrictions. Silent protesters held up sheets of blank paper, directly condemning the repression of demonstrators’ rights and calling for the immediate release of all detainees involved in the protests.

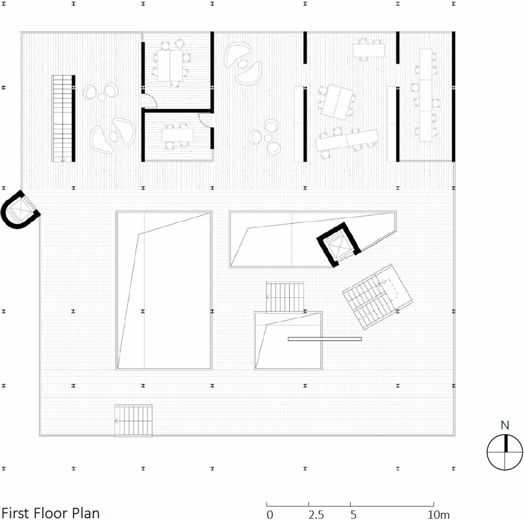
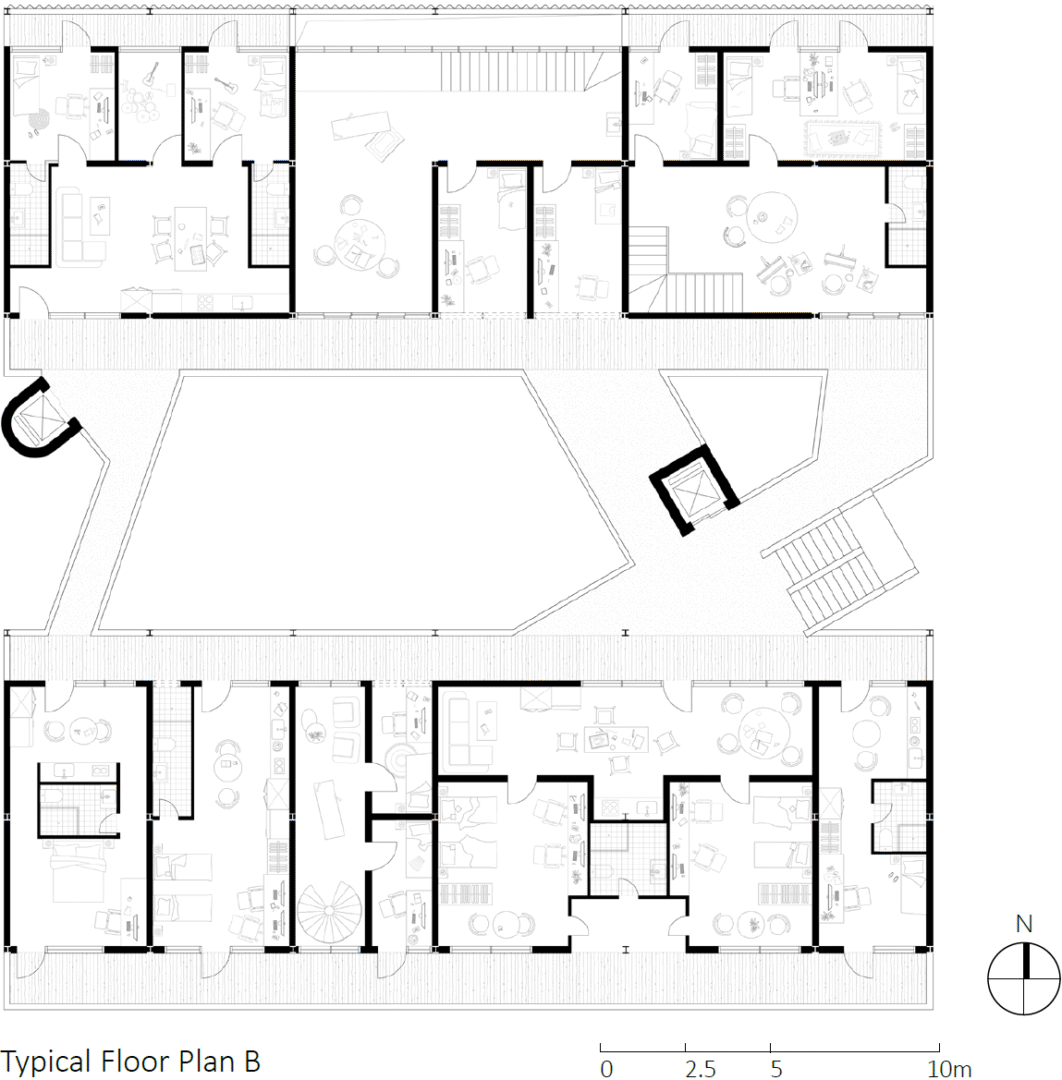
STEP 1:
Based on the typical dormitory typology of Chinese Mainland universities.
STEP 2:
Replace narrow corridors with an open atrium and insert vertical circulation cores.
STEP 3:
Introduce public activity spaces at the ground floor and integrate diverse dormitory units to meet various needs.













© 2019–2025 Mi Zhou. Images, drawings, and text by Mi Zhou unless credited.